
| 居家装修平面图及效果图 |
|
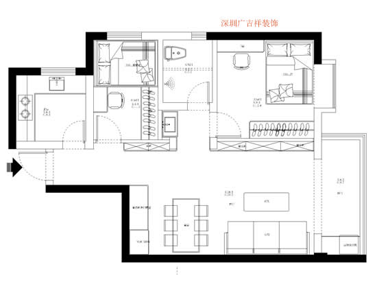
深圳装饰公司 深圳广吉祥装饰公司 这是一套动静分区清晰、采光通透的经典两居室户型,兼顾实用性与居住舒适度,非常适合三口之家或追求品质生活的年轻家庭。 • 空间布局:入户即见开阔的客餐厅一体空间,连接南向大面宽阳台,形成通透的公共活动区;厨房紧邻入户门,动线便捷且避免油烟干扰生活区。 • 卧室配置:两间卧室均配备书桌与收纳空间,兼顾居住与办公需求,其中主卧面宽充足,可容纳大衣柜,私密性强;次卧可作为儿童房或书房使用,功能灵活。 • 卫浴设计:干湿分离的独立卫生间,有效提升使用效率,避免早晚高峰使用冲突。 • 收纳系统:全屋定制了多处嵌入式柜体与收纳区,从玄关到卧室,充分利用每一寸空间,让日常杂物有序归置,保持空间整洁清爽。 • 采光优越:客餐厅与阳台相连,大面玻璃窗引入充足自然光,让公共区域明亮通透。 • 动线流畅:入户-厨房-餐厅-客厅的生活动线连贯高效,卧室区与公共区完全分隔,休息与娱乐互不干扰。 • 功能完备:两卧+一卫+独立餐厨+观景阳台的配置,满足日常居住、休闲、收纳等全场景需求。 |
联系我们
深圳市广吉祥装饰工程有限公司
地址:深圳市罗湖区景贝南小区
联系人:吴先生
邮编:518001
电话:0755-25400019
手机:13714073800
网址:http://www.szgjxzs.com
邮箱:2010nh@163.com
QQ:616022974