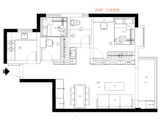
罗湖装修公司 深圳广吉祥装饰公司客餐厅核心区采用开放式布局打通客餐厅,打造无遮挡的家庭活动核心区。客厅预留整面沙发背景墙与电视墙,满足日常观影、家庭休闲需求;餐厅紧邻厨房,设置4-6人餐台,兼顾日常用餐与亲友聚餐,动线流畅不拥挤。
2. 厨房与储物区厨房采用l型操作台布局,预留充足的烹饪、备餐空间,同时搭配高柜实现家电一体化与储物收纳,解决厨房杂物收纳难题。入户区域设置整面玄关柜,实现鞋帽、杂物的集中收纳,保持入户整洁。
工程案例
more
装饰常识
联系我们
深圳市广吉祥装饰工程有限公司
地址:深圳市罗湖区景贝南小区
联系人:吴先生
邮编:518001
电话:0755-25400019
手机:13714073800
网址:http://www.szgjxzs.com
邮箱:2010nh@163.com
QQ:616022974
深圳市广吉祥装饰工程有限公司®版权所有 地址:深圳市罗湖区景贝南小区
装修咨询:0755-25400019 E-mail: 2010nh@163.com